
MIL-DTL-24403/1F(SH)
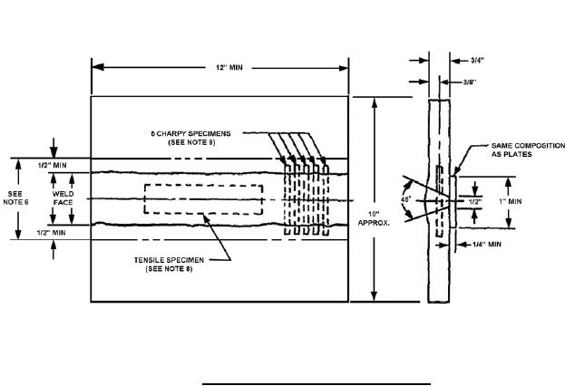
FIGURE 1. Weld joint for mechanical properties tests.
NOTES to Figure 1:
1.
Base plate shall be in accordance with ASTM A131/A131M Grade B or Grade B steel of MIL-S-22698.
One base plate assembly of the size shown is sufficient for the specimens required for conformance
inspection testing. Two base plate assemblies as illustrated on Figure 1 or one longer assembly of
sufficient length to be cut into two sections after welding are required for qualification inspection testing.
One assembly is for evaluating the as-welded condition and the other for the stress-relieved condition. The
base plate size of each assembly should be increased to provide five additional Charpy specimens required
for the one additional testing temperature.
2.
Assembly shall be at room temperature at the start of welding. After completion of each pass, the interpass
temperature of the assembly shall be checked and the assembly shall be allowed to cool or shall be
reheated, as required to maintain the assembly temperature in the range 300±25 °F. Any required cooling
of test assemblies shall be done in still air at room temperature, and assemblies shall not be force cooled
with compressed air or by any other means. If it is necessary to interrupt this procedure, and the assembly
cools, the assembly shall be reheated to 300±25 °F prior to resuming welding. This note does not apply to
MIL-71T-1-HYR, MIL-71T-1-HYN, and MIL-71T-1-HYD MIL-types, see Notes 10 and 11.
14
For Parts Inquires call Parts Hangar, Inc (727) 493-0744
© Copyright 2015 Integrated Publishing, Inc.
A Service Disabled Veteran Owned Small Business