
MIL-DTL-22200/1H(SH)
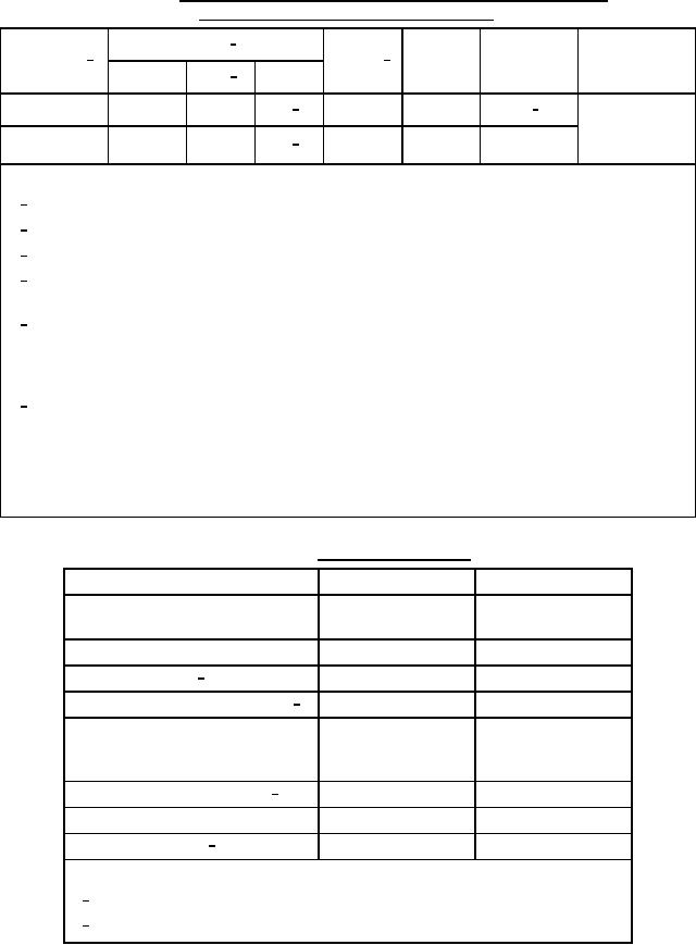
TABLE VII. Summary of required nondestructive (NDT) and mechanical tests
for qualification and conformance inspection.
NDT 2/
Chemical
Tensile 3/
Figure No. 1/
Charpy
Requirements
analysis
4/
RT
VT
MT
X 5/
X 6/
1
X
X
X
X
MIL-E-22200
and tables III
X 5/
2
X
----
----
----
----
and IV herein
NOTES:
1/
2/
See 3.9.
3/
Includes ultimate, yield, elongation, and reduction in area.
4/
MT is not required for figure 1 test plates prepared using MIL-7018-M, MIL-8018-C3, MIL-
8018-C3SR, and MIL-9018-M electrode.
5/
the radiography requirements for figure 2 assemblies for Class 2 and 3 electrodes. If the figure 1
assembly is radiographed, the figure 2 test assembly may be eliminated for Class 2 and 3
electrodes.
6/
If chemical analysis is not determined using chemical analysis test pads welded as specified in
MIL-E-22200, chemical analysis shall be determined from milling sample taken from the
centerline of the broken tensile specimens or drillings, or by optical emission spectroscopy on any
sample that is taken and analyzed at the depth of the tensile specimen centerline. In event of
variances with composition requirements or conflicting results by testing activities, analysis shall
be verified by procedures as specified in MIL-E-22200.
TABLE VIII. Summary of other tests.
Tests
Procedures
Requirements
MIL-E-22200 and
Visual and dimensional
MIL-E-22200
3.7 herein
Concentricity
MIL-E-22200
MIL-E-22200
Dielectric strength 1/
MIL-E-22200
MIL-E-22200
Flaking and cracking of covering 1/
MIL-E-22200
MIL-E-22200
MIL-E-22200 and 4.8
herein or AWS
Covering moisture
3.3.1 herein
A4.4M and 4.8 herein
Total iron content in covering 1/
MIL-E-22200
3.3.2 herein
Alloy identity
MIL-E-22200
MIL-E-22200
Diffusible hydrogen 2/
4.6.1 herein
3.3.1 herein
NOTES:
1/
Required for qualification inspection only.
2/
Required for MIL-7018-M and MIL-11018-M type only.
8
For Parts Inquires call Parts Hangar, Inc (727) 493-0744
© Copyright 2015 Integrated Publishing, Inc.
A Service Disabled Veteran Owned Small Business