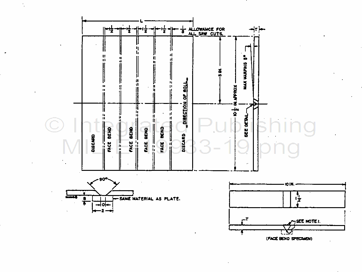
MIL-E-19933 Electrodes And Rods - Welding, Bare, Chromium And Chromium-Nickel SteelsThis specification covers chromium l nd chromium-nickel alloy bare welding electrodes and out-length rods for use with the inert-gas metal-are (consumable electrode) and the tungsten-arc welding processes: and bare welding electrode in coils for submerged-arc welding process.